fr

Votre recherche

Romans-sur-Isère (26100)

4 pièces - 117,78 m²

ROMANS RUE JULES FERRY - APPARTEMENT 4 PIECES DE 117.78 M²

477 000 €
Ref : 419
Découvrir le bien

Nous vous proposons ce magnifique appartement 4 pièces de 117.78 m² perché au 3ième étage de la résidence LE BELLEVUE à Romans sur Isère. Il bénéficie d'un emplacement idéal dans un secteur résidentiel calme à quelques minutes à pieds des commodités et commerces.

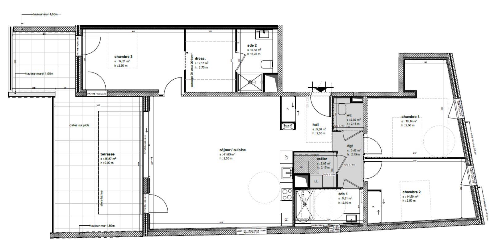
Son agencement est optimal. Le hall d'entrée ouvre sur un grand espace de vie avec salon et cuisine ouverte donnant sur une terrasse de 35.67 m².
Vous y découvrirez 3 grandes chambres dont une avec placard et une autre avec accès à un grand dressing et à une salle d'eau privative avec toilettes. Une 2ième salle de bain et des toilettes vous apporterons plus de confort. Enfin, un cellier adossé à la cuisine servira à accueillir la pompe à chaleur et pourra servir de buanderie.

Cet appartement est un lieu de vie unique offrant de grands espaces baignés de lumière avec en prime une vue sur le Vercors depuis la terrasse.

Possibilité d'acheter un garage en sous sol.

Les informations sur les risques auxquels ce bien est exposé sont disponibles sur le site Géorisques : www.georisques.gouv.fr.

RE 2020.

Copropriété de 31 lots dont 11 d'habitations.


Pour plus de rensiegnements veuillez nous contacter au 06 31 85 17 36 ou nous écrire à l'adresse: pierre@danton-immo.com .

TRAD_ZEPHYR_Caracteristique TRAD_ZEPHYR_Valeurs
Code postal 26100
Surface habitable (m²) 117,78 m²
Surface loi Carrez (m²) 117 m²
Nombre de chambre(s) 3
Nombre de pièces 4
Etage 3
Nombre de niveaux 1
Ascenseur OUI
Vue Vercors
TRAD_ZEPHYR_Caracteristique TRAD_ZEPHYR_Valeurs
Nb de salle de bains 1
Nb de salle d'eau 1
Cuisine Américaine
Mode de chauffage Pompe à chaleur
Type de chauffage Au sol
Format de chauffage Individuel
Interphone OUI
Visiophone OUI
Balcon NON
Terrasse OUI
Murs mitoyens 3
Exposition Nord-Sud
Année de construction 2025
TRAD_ZEPHYR_Caracteristique TRAD_ZEPHYR_Valeurs
Copropriété OUI
Lot n° 9
nombre de lots 11
plan de sauvegarde NON
statut du syndic pas de procédure en cours
TRAD_ZEPHYR_Caracteristique TRAD_ZEPHYR_Valeurs
Prix de vente 477 000 €
Les honoraires d'agence seront intégralement à la charge du vendeur  
Etage 3
entrée 5.30 m²

salon/sejour 41.65 m²

cellier 2.85 m²

dégagement 3.42 m²

salle de bain 5.31 m²

chambre 1 16.14 m²

chambre 2 14.59 m²

chambre 3 14.21 m²

dressing 7.11 m²

salle d'eau 5.18 m²

WC 2.02 m²

DPE GES
  • Commerces et santé
  • Loisirs
  • Ecoles
  • Transports
  • Pratique
Contacter pour ce bien
L'agence
Téléphone 04 75 83 29 22
Adresse
160 Avenue Victor Hugo - 26000 Valence

* Champ obligatoire

Les informations recueillies sur ce formulaire sont enregistrées dans un fichier informatisé par La Boite Immo agissant comme Sous-traitant du traitement pour la gestion de la clientèle/prospects de l'Agence / du Réseau qui reste Responsable du Traitement de vos Données personnelles.
La base légale du traitement repose sur l’intérêt légitime de l'Agence / du Réseau.
Elles sont conservées jusqu'à demande de suppression et sont destinées à l'Agence / au Réseau.
Conformément à la loi « informatique et libertés », vous pouvez exercer votre droit d'accès aux données vous concernant et les faire rectifier en contactant l'Agence / le Réseau.
Si vous estimez, après avoir contacté l'Agence / le Réseau, que vos droits « Informatique et Libertés » ne sont pas respectés, vous pouvez adresser une réclamation à la CNIL.
Nous vous informons de l’existence de la liste d'opposition au démarchage téléphonique « Bloctel », sur laquelle vous pouvez vous inscrire ici : https://www.bloctel.gouv.fr 
Dans le cadre de la protection des Données personnelles, nous vous invitons à ne pas inscrire de Données sensibles dans le champ de saisie libre
Ce site est protégé par reCAPTCHA, les Politiques de Confidentialité et les Conditions d'Utilisation de Google s'appliquent.

Découvrir nos outils