fr

Votre recherche

Romans-sur-Isère (26100)

3 pièces - 91,49 m²

ROMANS RUE JULES FERRY - APPARTEMENT 3 PIECES DE 91.49 M²

325 600 €
Ref : 419 101
Découvrir le bien

Dans un secteur résidentiel calme à seulement 10 minutes à pied de la place Jean Jaurès, nous vous proposons cet appartement 3 pièces de 91.49m², situé au 1er étage, avec ascenseur, de la résidence LE BELLEVUE à Romans sur Isère.
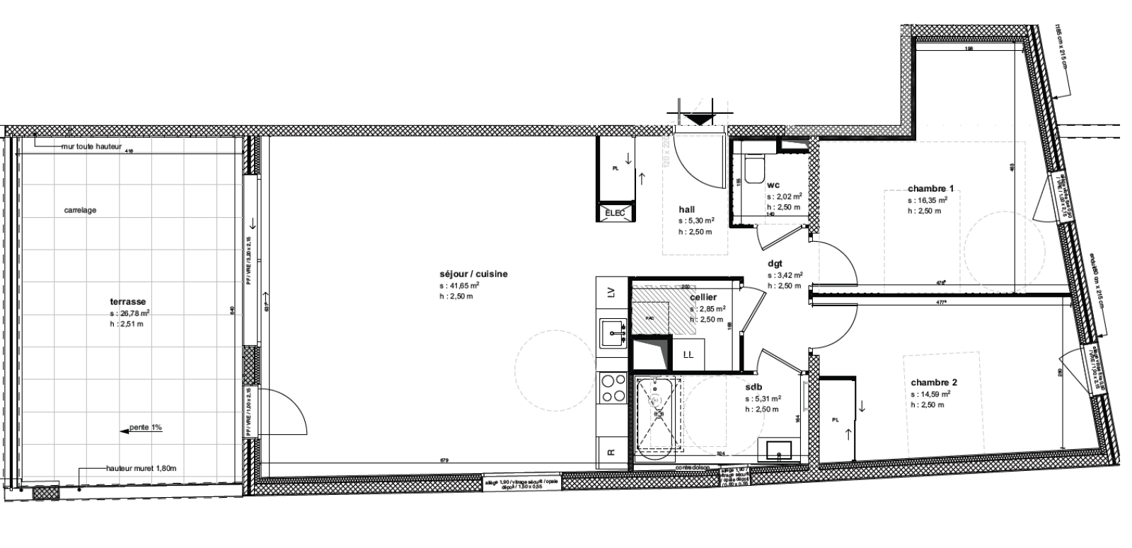
Il est composé d'un hall d'entrée, d'un espace de vie avec salon et cuisine ouverte donnant sur une terrasse de 26.78 m², de 2 chambres , d'une salle de bains, d'un cellier et des toilettes séparées.
Un lieu de vie fonctionnel avec de nombreux rangements, un espace séjour/cuisine orienté plein sud avec de grandes ouvertures pour bénéficier d'une belle luminosité et une pompe à chaleur individuelle fournissant le chauffage et le rafraichissement par le sol pour plus de confort.
Possibilité d'acheter un garage et une cave en sous sol.
RT2020.

Pour plus de rensiegnements veuillez nous contacter au 06 31 85 17 36 ou nous écrire à l'adresse: pierre@danton-immo.com .
TRAD_ZEPHYR_Caracteristique TRAD_ZEPHYR_Valeurs
Code postal 26100
Surface loi Carrez (m²) 91 m²
Nombre de chambre(s) 2
Nombre de pièces 3
Etage 1
Nombre de niveaux 1
Ascenseur OUI
TRAD_ZEPHYR_Caracteristique TRAD_ZEPHYR_Valeurs
Nb de salle de bains 1
Cuisine Américaine
Mode de chauffage Pompe à chaleur
Type de chauffage TRAD_TYPE_CHAUFF_AIR_EAU
Format de chauffage Individuel
Interphone OUI
Visiophone OUI
Balcon NON
Terrasse OUI
Murs mitoyens 3
Exposition Nord-Sud
TRAD_ZEPHYR_Caracteristique TRAD_ZEPHYR_Valeurs
Copropriété OUI
Lot n° 3
nombre de lots 11
TRAD_ZEPHYR_Caracteristique TRAD_ZEPHYR_Valeurs
Prix de vente 325 600 €
Les honoraires d'agence seront intégralement à la charge du vendeur  
Etage 1
Hall 5.30 m²

dégagement 3.42 m²

séjour/cuisine 41.65 m²

chambre 1 16.35 m²

chambre 2 14.59 m²

salle de bain 5.31 m²

cellier 2.85 m²

WC 2.02 m²

terrasse 26.78 m²

DPE GES
  • Commerces et santé
  • Loisirs
  • Ecoles
  • Transports
  • Pratique
Contacter pour ce bien
L'agence
Téléphone 04 75 83 29 22
Adresse
160 Avenue Victor Hugo - 26000 Valence

* Champ obligatoire

Les informations recueillies sur ce formulaire sont enregistrées dans un fichier informatisé par La Boite Immo agissant comme Sous-traitant du traitement pour la gestion de la clientèle/prospects de l'Agence / du Réseau qui reste Responsable du Traitement de vos Données personnelles. La base légale du traitement repose sur l'intérêt légitime de l'Agence / du Réseau. Elles sont conservées jusqu'à demande de suppression et sont destinées à l'Agence / au Réseau. Conformément à la loi « informatique et libertés », vous disposez des droits d’accès, de rectification, d’effacement, d’opposition, de limitation et de portabilité de vos données. Vous pouvez retirer votre consentement à tout moment en contactant directement l’Agence / Le Réseau. Consultez le site https://cnil.fr/fr pour plus d’informations sur vos droits. Si vous estimez, après avoir contacté l'Agence / le Réseau, que vos droits « Informatique et Libertés » ne sont pas respectés, vous pouvez adresser une réclamation à la CNIL. Nous vous informons de l’existence de la liste d'opposition au démarchage téléphonique « Bloctel », sur laquelle vous pouvez vous inscrire ici : https://www.bloctel.gouv.fr Dans le cadre de la protection des Données personnelles, nous vous invitons à ne pas inscrire de Données sensibles dans le champ de saisie libre.
Ce site est protégé par reCAPTCHA, les Politiques de Confidentialité et les Conditions d'Utilisation de Google s'appliquent.

Découvrir nos outils